Casa indipendente in vendita

Castel D'Azzano, Via Giuseppe Mazzini
€ 215.000
7 locali 7 locali
254 Mq 254 Mq
2 bagni 2 bagni

Casa indipendente in vendita

Castel D'Azzano, Via Giuseppe Mazzini

Descrizione annuncio

CASTEL D'AZZANO - CASA SINGOLA

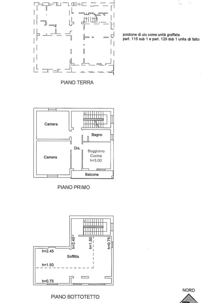
In via tranquilla e lontana dal traffico, proponiamo una soluzione indipendente e libera su 3 lati, DISPONIBILE DA SUBITO. L'immobile si sviluppa su 3 livelli, con zona giorno, sala da pranzo, zona lavanderia, 3 camere matrimoniali di generose dimensioni, 2 bagni e piano secondo allo stato grezzo. A completamento della proprietà un piccolo pezzo di terreno di fronte alla casa dove è presente un autorimessa.

La soluzione è attualmente accatastata in 2 unità abitative ma è possibile acquistarle entrambe come prima casa, facendo in seguito al rogito notarile una pratica di fusione.

Mostra tutto

Nelle vicinanze

Trasporto pubblico Trasporto pubblico
LA RIZZA III
LA RIZZA III
2,4 Km
LA RIZZA I
LA RIZZA I
2,4 Km
Castel D'Azzano
Castel D'Azzano
2,0 Km
Scuole Scuole
Scuola media A. Cesari
950 m
Scuola primaria Carlo Collodi
1,4 Km
Farmacia Farmacia
Farmacia Dr.Paola Sartori
910 m
Farmacia Paci
1,3 Km
Supermercati Supermercati
DPiù Discount
990 m
Migross
1,7 Km
Negozi Negozi
Bodini
420 m
Negozi
900 m
Venturini
1,3 Km
Bar Bar
Montecristo
860 m
Bar
2,3 Km
Ristoranti Ristoranti
Ristoro Martin Pescatore
710 m
Il Richiamo
1,2 Km
Al Senato
2,2 Km
Pizzeria alla Fermata
2,6 Km
Vecchio Ristorante Brigafatta
2,9 Km
Mostra tutto

Caratteristiche

Rif.:
61143263
Piano:
Su più livelli di 3
Totale piani:
3
Box:
1
Balconi:
2
Camere da letto:
3
Mostra tutto
Prezzo Prezzo
€ 215.000
Rata mutuo Rata mutuo
€ 1.015 / mese
Proponi il tuo prezzoProponi il tuo prezzo

Classe Energetica

F
F
F
F
F
F
F
F
F
Anno di costruzione:
1970
Riscaldamento:
Autonomo
Tipo impianto:
A radiatori
Tipo alimentazione:
Metano

Ti interessa visionare l'immobile?

Fissa un appuntamento  Fissa un appuntamento

Richiedi informazioni

Clicca su Leggi per aprire l'informativa
* Questi campi sono obbligatori

Calcola il tuo mutuo

Semplice e senza impegno
Anticipo

( % )
Mutuo

( % )

pochi semplici passi

inserisci i tuoi dati
Questionario completato
Grazie per aver richiesto un appuntamento senza impegno con un nostro Consulente del Credito e Assicurativo.

Hai inserito correttamente tutti i dati necessari e a breve riceverai una e-mail con un link da convalidare per inviare i tuoi dati.
Affiliato
Immobiliare Castel D'Azzano Srl
Via Marconi, 16/B 37060 Castel D'Azzano (VR)

Il nostro staff


  • Marco Di Giovannantonio
    Affiliato

  • Gabriele Cortese
    Responsabile

  • Ginevra Menegazzi
    Collaboratrice

  • Margherita Scola
    Coordinatrice
Via Marconi, 16/B 37060 Castel D'Azzano (VR)
Zona: Castel D'azzano-Povegliano Veronese-Vigasio
Mostra su mappa
Orari: LUNEDI' - VENERDI' 9.00 - 12.30 15.00 - 19.30 SABATO 9.00 - 12.30
Affiliato
Immobiliare Castel D'Azzano Srl
Via Marconi, 16/B 37060 Castel D'Azzano (VR)

2025 Tecnocasa Franchising S.p.A. - P. IVA 08365160152 - Via Monte Bianco 60/A 20089 Rozzano (MI). Ogni agenzia ha un proprio titolare ed è autonoma. Privacy policy | Policy utilizzo | Cookie policy